28+ Chapter 7 Test A Algebra 2
Absolute Value Functions and Graphs. 113 Systems of Nonlinear Equations and Inequalities.
Algebra 2 Ch 13 Solutions Key A2 Ch 13 Solutions Key Peninsula
Web Join an activity with your class and find or create your own quizzes and flashcards.

. Find the slope of the line with the given points. A fraction is a number representing part of a whole. The oneContainer portal has stacks models and more.
Table 932 illustrates the behaviors of the basic arithmetic operators etcFor formatting functions refer to Section 98You should be familiar with the background information on datetime data types from Section. Given that the original listed data use one. Web On one morning during rush hour it varied from 125 at 710 am to 150 at 716 am to 225 at 722 am and to 250 at 728 am.
RC4 was initially a trade secret but in September 1994 a description of it was anonymously posted to the Cypherpunks mailing list. 77 Solving Systems with Inverses. Web The note here provides a brief of the chapter so that students find it easy to have a glance at once.
Web Hi my name is Kiana-Roselee and im not sure if i have dyslexia or not. Preparing for Assessment Cumulative Review. I ended up getting an 18 and my teacher wasnt very happy.
72 Systems of Linear Equations. If subtraction is performed with a single guard digit then m x x 28. Exercise 18 Exercise 19 Exercise 20 Exercise 21 Exercise 22 Exercise 23 Exercise 24 Exercise 25 Exercise 26.
Therefore x h 4 and x l 3 hence x l is not representable with p2 1 bit. Pick two points on the line 2Between 2 5 and 1 8 Slope-Intercept Form The Slope-Intercept Form of an equation of a line is y mx b whereAlgebra 2 guided notes pdf. Solve the system of equations using good algebra techniques.
Choose variables to represent those quantities. 75 Matrices and Matrix Operations. As a final example of exact rounding consider dividing m by 10.
Web Artificial beings with intelligence appeared as storytelling devices in antiquity and have been common in fiction as in Mary Shelleys Frankenstein or Karel Čapeks RUR. During another 2-week period he worked a total of 50 hours. Web Introduction to Systems of Equations and Inequalities.
Web Table 933 shows the available functions for datetime value processing with details appearing in the following subsections. The increasing tolls over those few minutes caused some drivers to opt out and the toll fell back. Web Then this Big Ideas Math Algebra 2 Answers Chapter 2 Quadratic Functions guide is the best option for you all.
Web Find step-by-step solutions and answers to Algebra 2. Then m 5 mx 35 and m x 32. Explore the entire Algebra 1 curriculum.
Find the slope of the line between -3 7 and -2 4You Try It. Polynomials in One Variable. A Common Core Curriculum - 9781608408405 as well as thousands of textbooks so you can move forward with confidence.
The topics and subtopics covered in class 9 polynomials chapter 2 include. The key points covered in the chapter have been noted. Adjust the colors to reduce glare and give your eyes a break.
Get FPGA software and kits for your project. The whole may be a single object or a group of objects where the parts have to be equal. 112 Systems of Linear Equations.
111 Systems of Linear Equations. Answer the question with. Web The latest Lifestyle Daily Life news tips opinion and advice from The Sydney Morning Herald covering life and relationships beauty fashion health wellbeing.
Web 71 Systems of Linear Equations. The study of mechanical or formal reasoning began with. Web To show that Theorem 6 really requires exact rounding consider p 3 2 and x 7.
76 Solving Systems with Gaussian Elimination. But in school i have been getting really low test results and i tend to zone out a lot in school. NCERT Exemplar Chemistry Class 11 Chapter 2 Structure of Atom is the best study material you can rely upon to prepare for CBSE Class 11 and entrance exam preparation.
While it is officially termed Rivest Cipher 4 the RC acronym is alternatively understood to stand for Rons Code see also RC2 RC5 and RC6. Quadratic equations exponents and more. In this article you get to find topic-wise BIM Algebra 2 Ch 2 Quadratic Functions Exercise questions answers practices quizzes chapter review chapter tests cumulative assessments etc.
Access new and previously released drivers for Intel hardware. 73 Systems of Nonlinear Equations and Inequalities. These characters and their fates raised many of the same issues now discussed in the ethics of artificial intelligence.
Web NCERT Exemplar Solutions Class 11 Chemistry Chapter 2 Free PDF Download. Web Find step-by-step solutions and answers to Glencoe Algebra 2 - 9780079039903 as well as thousands of textbooks so you can move forward with confidence. Web Experts at BYJUS have prepared the NCERT Solutions For Class 6 Maths Chapter 7 Fractions as per the latest CBSE Syllabus for Class 6 so that students can practise well for the final exams.
Web Provide AmericanBritish pronunciation kinds of dictionaries plenty of Thesaurus preferred dictionary setting option advanced search function and Wordbook. 115 Matrices and Matrix Operations. 78 Solving Systems with Cramers Rule.
Go through the points and solve problems based on them. Studying this exemplar solution will help you in grasping the concepts deeply and you can easily take. What schedule of reinforcement is being used.
Regardless of the total number of hours he works each week he is paid every 2 weeks. Name what we are looking for. Web Ben gets paid every 2 weeks.
Express the confidence interval in the format that uses the less than symbol. RC4 was designed by Ron Rivest of RSA Security in 1987. My last test i tried really hard but i just couldnt do it.
Web Set students up for success in Algebra 1 and beyond. Check the answer in the problem and make sure it makes sense. TInterval 13046 2215 x17598 Sx1601712719 n50 a.
Web Study with Quizlet and memorize flashcards containing terms like Refer to the accompanying data display that results from a sample of airport data speeds in Mbps. Web Develop test and run your workloads for free on a remote cluster of the latest Intel hardware. 1 Line A from Example 1 hint.
Identify what we are looking for. In one 2-week period he works a total of 20 hours. Most of the 37 signs relate to me.
Web Find step-by-step solutions and answers to Algebra 2 Common Core - 9780133186024 as well as thousands of textbooks so you can move forward with confidence. 116 Solving Systems with Gaussian Elimination. Translate into a system of equations.
Chapter 2Functions and Continuity.
Calculus And Analytic Geometry 1 Final Exam Summary Math 221 Calculus And Analytic Geometry 1 Wisconsin Thinkswap
Rd Sharma Solutions For Class 8 Chapter 1 Rational Numbers Download Free Pdf
Algebra Ii Practice Test Pdf
Rd Sharma Solutions For Class 8 Chapter 1 Rational Numbers Exercise 1 2 Get Free Pdf
14 Times Table Explanation Examples
Factors Of 84 Prime Factorization Methods Tree And Examples
Buy College Placement Math Success In 20 Minutes A Day Book Online At Low Prices In India College Placement Math Success In 20 Minutes A Day Reviews Ratings Amazon In
Rd Sharma Solutions For Class 8 Chapter 1 Rational Numbers Download Free Pdf
Skill Mastery Teaching Resources Tpt
7 Times Table Explanation Examples
Correlation 3 Pdf
7 Times Table Explanation Examples
Algebra 2 Exam Review Chapter 6 Youtube
Solved Pa Help Na Yung Mahirap Na Yan Math May Solutions Dapat Nasa Picture Yung Sasagutan Non Sense Copied Incomplete Unhelpful Report D C Perform The Following Mathematical Expressions 1 47 25 52
What Is The Value Of 28 10 3 1 2 1 2 7 4 3 1 2 1 2 Quora
Chapter 7 Practice Test Algebra Ii Chapter 7 Sections 1 3 Practice Test Name Review Solve By Completing The Square Or Using The Quadratic Formula Course Hero
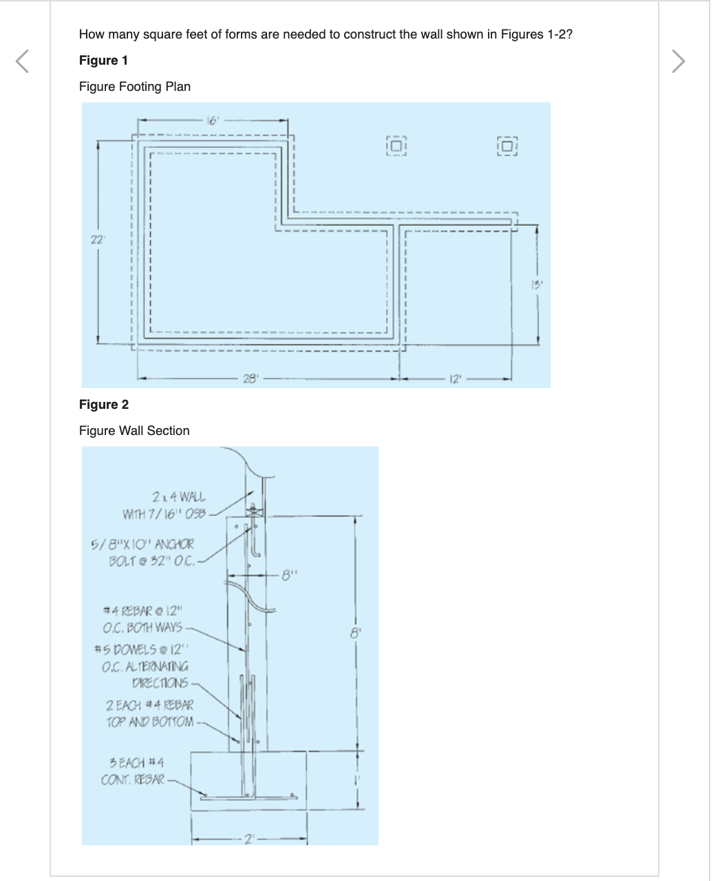
Solved How Many Lineal Feet Of Forms Are Needed To Construct Chegg Com